Autóbeálló garázs Wallgau430
Ártartomány: 1588000 Ft - 2488000 Ft
Gyártó: Skan HolzNémet minőség, tartósság
- Szaktanácsadás és ügyfélszolgálat
- Országos kiszállítás
- Ingyenes átvétel a raktárban
Autóbeálló garázs Wallgau430
Autóbeálló garázs 430 cm széles nyeregtetős típus
Nyeregtetős nyitott garázs Skanholz Wallgau Carport egyállásos garázstető zsindely tetővel együtt
- Autóbeálló garázstető több méretben és színben rendelhető. Kérjük válasszon a fenti fotó melletti méretek és színek közül 430 x 600 cm vagy 430 x 750 cm kivitelt
- Az alapszerkezet / vázszerkezet teljes egészében telített faanyagból készül
- Előregyártott kész garázs egyállásos autóbeálló konzervált gyalult fenyő fűrészáruból
- Ajánlatunk a tetőfedő bitumenes zsindelyt is tartalmazza ! A zsindely színe lehet vörös, szürke vagy zöld. A kívánt zsindely színt kérjük egyeztetni kiszállítás előtt
- Masszív tartópillérek szelvénymérete 115 x 115 mm
- 20 mm tömörfa tető lambéria, statikailag méretezett masszív szarufákkal és kötőgerendákkal
- A garázs tető 200 kg/m2 megoszló teherbírásra van statikailag méretezve. Igény esetén a tetőhéjalás lehet tetőcserép is. Cserépfedés esetén a cserép beszerzése és a cserepezés megrendelő feladata !
- Nyitott garázs tetejének lejtése 25°
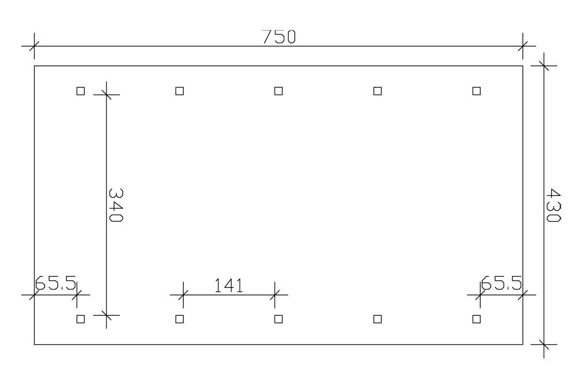
- Garázs áthaladási szélessége 340 cm; Áthaladási magasság 215 cm
- Garázstető tartópilléreinek belső távolsága 141 cm, lásd: műszaki rajzok szerint
- A garázs orommagassága 326 cm
- Szükséges tetőzsindely 30 m2 = 10# ( ennél az autóbeállónál az alap csomag része !)
- Az impregnált faanyagot javasolt tetszőleges színű lazúrral lefesteni az UV-állóság érdekében, vagy választhat gyárilag szürkére vagy dióbarnára festett faanyagot is felár ellenében.
- A garázstető teljes felülnézeti vetületi mérete: 430 x 600 cm vagy 430 x 750 cm
- A garázshoz kiegészítésként kérhet oldalfalakat vagy zárt szerszámos faházat is a garázs végébe. Kérjen ajánlatot, segítünk megoldani autója igényes tárolását.
- Egalizált méretű típus-termékeink összeszereléséhez ide kattintva tekinthet meg egy rövid videót
Önnek szüksége lesz még a szakszerű építéshez:
- Vagy 8 vagy 10db talajcsavarra vagy 8 vagy 10db betonba ragasztható pillértartóra, lásd. tönkalapozási módok
- Impregnált faanyag választása esetén ( festetlen ) minőségi Remmers vékonylazúrra
Helyszíni összeépítés díja a helyszíntől és a kiválasztott garázs méretétől függően, egyéni megbeszélés alapján, a helyszínről kapott fotó + pontos telepítési cím alapján.
Valamennyi tárolónk típustervek alapján előre gyártott, egalizált méretben készül a könnyű otthoni összeállíthatóság érdekében. Szállítás lapra szerelt csomagolásban, lefóliázva, az összes szükséges szerelékkel és műszaki rajzzal, összeszerelési útmutatóval együtt történik. Az oldalon látható fotók minden esetben a saját termékeinkről készültek!
Tetszőleges színű festésre, bádogos munkára stb. is kérhet ajánlatot.
Ha nem megfelelő Önnek a méret, rendelheti a garázst akár 900 cm hosszú kivitelben is. A hosszított változatok esetében praktikus szerszámtároló is beépíthető a garázsok végébe.
A hosszabb garázsok végébe szerszámos házat / tárolót is rendelhet felár ellenében.
A garázs oldala(i) és/vagy vége tömör oldalfal-elemekkel felár ellenében szintén lezárhatók, kérjük kérje egyedi ajánlatunkat.
Garázsok építése fából, teljes kivitelezést is rendelhet A-tól Z-ig.
Nem mindenki kertjében fér el azonban egy garázs, az meg még kevesebb esetben oldható meg, hogy a házba építsük be az autó tárolására szolgáló helységet. Ezekben a helyzetekben lehet megoldás a nyitott garázs, ami nem foglal akkora helyet, mint a zárt, mégis megvédi az autót az esőtől, jégesőtől, hótól, és a madárürüléktől is.
További információk
| Tömeg | 980 kg |
|---|---|
| Méretek | 620 × 750 × 354 cm |
| Méret | 430 x 600 cm, 430 x 750 cm |
| Szín | Dió barna, Impregnált festetlen faanyag, Palaszürke |
- A garázs kiszállítása lapra szerelten történik. A kiszállításra kerülő összepántolt faanyag egységcsomagként kerül kiszállításra.
- A mellékelt alapozási rajz alapján kell elkészíteni a pillérek alatti tönkalapozást, azaz a pilléreket szakszerűen kell a talajhoz rögzíteni betonozható H-vasakkal vagy talajcsavarokkal. Tönkalapozásról bővebben ide kattintva olvashat.
- A faanyag nem alaktartó ennél a 322-es nyitott garázs típusnál ! Alaktartó, azaz ragasztott faanyagból épülő garázsokat is építünk, de a ragasztott anyagok sokkal drágábbak.
- A telített faanyagok favédelme biztosított ugyan de UV-védelme nincs a fának , ezért le kell festeni vékony lazúrral, ellenkező esetben a faanyag meg fog szürkülni a napsugárzás UV-hatása miatt !
- Amennyiben kéri az alapozástól a festésig vállaljuk a garázs megépítését.
Érdekelhetnek még…
Ajánlott kiegészítők
-
Gyártó: faház kiegészítők
Faházak tetőfedéséhez orombádog
Ártartomány: 35000 Ft - 84000 FtOpciók választása Ennek a terméknek több variációja van. A változatok a termékoldalon választhatók ki -
AKCIÓ!-20% november 30-ig
Betonba ragasztható pillértartó
3900 FtOpciók választása Ennek a terméknek több variációja van. A változatok a termékoldalon választhatók ki -
Gyártó: Remmers
Azonnal elvihető
-
Gyártó: Krinner
AKCIÓ!
Talajcsavar pillérrögzítő
Original price was: 15500 Ft.14000 FtCurrent price is: 14000 Ft.























Értékelések
Még nincsenek értékelések.